83 keer gemerkt
Saniertes Einfamilienhaus mit Pferdeboxen, Reitpaltz, Weiden ( 8ha Land) in Alleinlage
€ 495.000
€ 495.000
Advertenties ID: 4627802
Type advertentie: Tweedehands advertentie
Plaatsingsdatum: 29.12.2025
Reclameoproep: 8256
Bericht
Ik ben geïnteresseerd
Favoriet toevoegen
Paard onroerend goed
Gebruikt
Beschrijving
Nederlands
- Duits
- Engels
- Spaans
- Franse
- Italiaans
- Poolse
- Nederlands
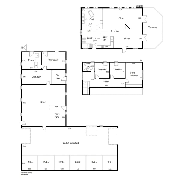
Diese Immobilie ist das ideale Zuhause für Sie, wenn Sie in enger Verbindung zur Natur leben und viel Platz um sich herum haben möchten. Für die Haltung von Pferden sind die Bedingungen hier optimal. Der Hof stammt aus dem Jahr 1929 und wurde in den letzten zwanzig Jahren sowohl innen als auch außen gründlich renoviert. Die letzte Sanierung wurde in 2024 vorgenommen. Es besteht kein Sanierungsrückstau. Das Wohnhaus im Morten-Korch-Stil ist im Erdgeschoss mit einem großzügigen Wohnbereich eingerichtet, in dem ein geräumiges Wohnzimmer offen mit einer ebenso großen Wohnküche verbunden ist. Sowohl vom Wohnzimmer als auch von der Wohnküche aus hat man Zugang zur Südterrasse, sodass der Übergang zwischen Innen- und Außenbereich nahezu unsichtbar ist. Hier gelangt man auch in den rundherum eingezäunten Garten mit schönem Gewächshaus und Staudenbeet sowie großzügiger Rasenfläche. Im Erdgeschoss befindet sich auch das schöne Badezimmer des Hauses mit reichlich Platz für die tägliche Dusche und für ein entspannendes Bad.. Im Obergeschoss befinden sich die ruhigeren und privateren Räume, ein größeres Schlafzimmer sowie zwei weitere Zimmer und eine Toilette. Das eingestellte Video zeigt jeden Raum im Haus. Die beiden Nebengebäude bieten sechs Boxen für die Pferde und viel weiteren Platz sowie einen Dachboden. Darüber hinaus gibt es hier Räume unterschiedlicher Größe sowie einen Heizungsraum für die Pellet-/Feststoffheizung. Das große Grundstück bietet neben den stilvoll eingezäunten Pferdekoppeln einen parkähnlich angelegtem Wald mit insgesamt ca. 1.000 m schönen Wegen für entspannte Spaziergänge und kleine Ausritte, einen kleinen Waldsee. Darüber hinaus stehen für die Pferde 5 Paddocks, davon 2 Winterpaddocks mit drainiertem Untergrund, sowie ein Reitplatz mit ca. 20 x 40 m mit Wattsandboden und Drainage als idealer Trainingsort zur Verfügung. Die nähere Umgebung ist für Ausritte ebenfalls gut geeignet. In ca. 5 km Entfernung befindet sich der Reitclub Aalestrup mit zwei großen Reithallen, den man als Mitglied günstig nutzen kann. Wohnfläche Haus: 152 qm Grundstücksfläche 83.819 qm (davon Weide ca. 5 ha, Wald ca. 2 ha)
Deze tekst werd automatisch vertaald.
This property is the ideal home for you if you want to live in close connection with nature and desire plenty of space around you. The conditions for keeping horses here are optimal. The farm dates back to 1929 and has been thoroughly renovated both inside and out over the last twenty years. The last renovation was completed in 2024. There is no backlog of renovations. The residential house, designed in the Morten Korch style, features a spacious living area on the ground floor, where a large living room is open to an equally large kitchen. Both the living room and the kitchen have access to the south-facing terrace, making the transition between the indoor and outdoor areas nearly seamless. From here, you can also access the fully fenced garden, which includes a beautiful greenhouse, a flower bed, and a generous lawn area. On the ground floor, there is also the lovely bathroom of the house, providing ample space for daily showers and a relaxing bath. The upper floor contains the quieter and more private rooms, including a larger bedroom, two additional rooms, and a toilet. The two outbuildings offer six stalls for the horses and plenty of additional space, as well as an attic. Furthermore, there are rooms of various sizes and a heating room for the pellet/solid fuel heating system. The large property features stylishly fenced horse pastures, a park-like forest with approximately 1,000 meters of beautiful paths for relaxed walks and small rides, and a small forest lake. Additionally, there are 5 paddocks for the horses, including 2 winter paddocks with drained ground, as well as a riding arena measuring approximately 20 x 40 meters with sand footing and drainage, making it an ideal training location. The surrounding area is also well-suited for riding out. About 5 km away is the Aalestrup Riding Club, which has two large riding halls that members can use at a reduced rate. Living area of the house: 152 sqm Land area: 83,819 sqm (of which pasture approx. 5 ha, forest approx. 2 ha)
Deze tekst werd automatisch vertaald.
Esta propiedad es el hogar ideal para usted si desea vivir en estrecha conexión con la naturaleza y tener mucho espacio a su alrededor. Las condiciones aquí son óptimas para la cría de caballos. La finca data de 1929 y ha sido completamente renovada tanto por dentro como por fuera en los últimos veinte años. La última renovación se realizó en 2024. No hay atrasos en las reparaciones. La casa de estilo Morten-Korch está equipada en la planta baja con una amplia zona de estar, donde una espaciosa sala de estar está conectada de forma abierta con una igualmente grande cocina-comedor. Tanto desde la sala de estar como desde la cocina-comedor se tiene acceso a la terraza sur, de modo que la transición entre el interior y el exterior es casi invisible. Desde aquí también se accede al jardín completamente cercado, que cuenta con un hermoso invernadero, un parterre de flores y una amplia zona de césped. En la planta baja también se encuentra el hermoso baño de la casa, con mucho espacio para la ducha diaria y para un relajante baño. En la planta superior se encuentran los espacios más tranquilos y privados, un dormitorio más grande, así como dos habitaciones adicionales y un aseo. Los dos edificios anexos ofrecen seis boxes para los caballos y mucho espacio adicional, así como un desván. Además, hay habitaciones de diferentes tamaños y una sala de calderas para la calefacción de pellets/sólidos. La gran parcela ofrece, además de los elegantes corrales para caballos, un bosque diseñado como un parque con aproximadamente 1.000 m de hermosos caminos para paseos relajantes y pequeños paseos a caballo, así como un pequeño lago en el bosque. Además, hay 5 paddocks para los caballos, de los cuales 2 son paddocks de invierno con un suelo drenado, así como una pista de equitación de aproximadamente 20 x 40 m con suelo de arena de Watt y drenaje, que es un lugar ideal para el entrenamiento. Los alrededores inmediatos también son adecuados para paseos a caballo. A aproximadamente 5 km se encuentra el club ecuestre Aalestrup, que cuenta con dos grandes cubiertas de equitación, que se pueden utilizar a precios reducidos como miembro. Superficie habitable de la casa: 152 m² Superficie del terreno: 83.819 m² (de los cuales pasto aproximadamente 5 ha, bosque aproximadamente 2 ha)
Deze tekst werd automatisch vertaald.
Cette propriété est l'endroit idéal pour vous si vous souhaitez vivre en harmonie avec la nature et disposer de beaucoup d'espace autour de vous. Les conditions ici sont parfaites pour l’élevage de chevaux. La ferme, datant de 1929, a été entièrement rénovée au cours des vingt dernières années, tant à l’intérieur qu’à l’extérieur. La dernière rénovation a été effectuée en 2024, il n’y a donc aucun retard en matière de travaux. La maison d’habitation de style Morten-Korch est aménagée au rez-de-chaussée avec un espace de vie spacieux, comprenant un grand salon ouvert relié à une cuisine-salle à manger de taille similaire. Tant le salon que la cuisine donnent accès à la terrasse sud, créant une transition intérieure-extérieure presque invisible. De là, on accède également au jardin entièrement clôturé, doté d’une jolie serre, d’un massif de plantes vivaces et d’une grande pelouse. Au rez-de-chaussée se trouve également la belle salle de bains, offrant suffisamment d’espace pour une douche quotidienne ou un bain relaxant. À l’étage, se trouvent des espaces plus calmes et privés : une chambre principale plus grande, deux autres pièces et une toilette. Les deux dépendances offrent six boxes pour les chevaux ainsi que beaucoup d’espace supplémentaire et un grenier. On y trouve aussi différentes pièces de tailles variées, ainsi qu’une chaufferie pour le chauffage à pellets ou à combustibles solides. Le grand terrain comprend, en plus des paddocks élégamment clôturés, une forêt aménagée en parc avec environ 1 000 mètres de sentiers agréables pour des promenades ou de petites randonnées à cheval, ainsi qu’un petit étang forestier. Pour les chevaux, il y a 5 paddocks, dont 2 paddocks d’hiver avec sol drainé, ainsi qu’un manège de 20 x 40 mètres avec une surface en sable de Watts et un système de drainage, idéal pour l’entraînement. La région environnante est également propice aux sorties à cheval. À environ 5 km se trouve le club équestre d’Aalestrup, doté de deux grandes manèges couverts, accessibles à tarif préférentiel pour les membres. Surface habitable de la maison : 152 m² Surface du terrain : 83 819 m² (dont environ 5 ha de pâturages et 2 ha de forêt)
Deze tekst werd automatisch vertaald.
Questa proprietà è la soluzione ideale per chi desidera vivere a stretto contatto con la natura e avere molto spazio intorno a sé. Le condizioni sono perfette anche per l'allevamento di cavalli. Il casale, risalente al 1929, è stato completamente ristrutturato negli ultimi vent'anni, sia internamente che esternamente. L'ultimo intervento di ristrutturazione è stato effettuato nel 2024, senza arretrati di lavori da completare. La casa in stile Morten-Korch si sviluppa al piano terra, con un ampio soggiorno che si apre su una spaziosa cucina abitabile. Sia dal soggiorno che dalla cucina si accede alla terrazza a sud, creando un collegamento quasi invisibile tra interno ed esterno. Da qui si raggiunge anche il giardino completamente recintato, dotato di un bel serra, aiuole di piante perenni e un'ampia area erbosa. Al piano terra si trova anche il bellissimo bagno della casa, spazioso e ideale per la doccia quotidiana o un bagno rilassante. Al primo piano si trovano le stanze più tranquille e private, tra cui una camera da letto matrimoniale, due ulteriori stanze e un bagno di servizio. Il video allegato mostra ogni stanza della casa. Le due dependance offrono sei box per i cavalli e molto altro spazio, oltre a un sottotetto. Sono presenti anche locali di diverse dimensioni e un locale caldaia per il riscaldamento a pellet o combustibile solido. Il grande terreno comprende, oltre ai paddock eleganti e recintati per i cavalli, anche una pineta con un parco e circa 1.000 metri di sentieri ideali per passeggiate rilassanti e piccole uscite a cavallo, un piccolo lago boscoso e cinque paddock, di cui due con fondo drenato per l'inverno, oltre a un'arena di circa 20 x 40 metri con pavimentazione in sabbia e drenaggio, perfetta per l'allenamento. La zona circostante è molto adatta anche per uscite a cavallo. A circa 5 km si trova il centro ippico di Aalestrup, dotato di due grandi maneggi, accessibili a prezzi vantaggiosi ai soci. Superficie abitativa della casa: 152 mq Superficie del terreno: 83.819 mq (di cui circa 5 ha di pascolo e 2 ha di bosco)
Deze tekst werd automatisch vertaald.
Deze woning is het ideale thuis voor u als u dicht bij de natuur wilt leven en veel ruimte om u heen wilt hebben. De omstandigheden voor het houden van paarden zijn hier optimaal. De boerderij dateert uit 1929 en is in de afgelopen twintig jaar zowel binnen als buiten grondig gerenoveerd. De laatste renovatie vond plaats in 2024. Er is geen achterstallig onderhoud. Het woonhuis in Morten-Korch-stijl is op de begane grond ingericht met een ruime woonkamer, die open verbonden is met een even grote woonkeuken. Zowel vanuit de woonkamer als de woonkeuken heeft men toegang tot het zuidterras, waardoor de overgang tussen binnen- en buitenruimte vrijwel onzichtbaar is. Hier komt men ook in de volledig omheinde tuin met een mooi kas en een vaste plantenbed, evenals een ruime graspartij. Op de begane grond bevindt zich ook de mooie badkamer van het huis met voldoende ruimte voor de dagelijkse douche en voor een ontspannend bad. Op de bovenverdieping bevinden zich de rustigere en meer privéruimtes, een grotere slaapkamer en twee andere kamers en een toilet. De twee bijgebouwen bieden zes stallen voor de paarden en veel extra ruimte, evenals een zolder. Daarnaast zijn er hier ruimtes van verschillende grootte en een stookruimte voor de pellet-/vaste brandstofverwarming. Het grote perceel biedt naast de stijlvol omheinde paardenweiden een parkachtig aangelegd bos met in totaal ongeveer 1.000 m mooie paden voor ontspannen wandelingen en kleine ritten, een klein bosmeer. Daarnaast zijn er voor de paarden 5 paddocks beschikbaar, waarvan 2 winterpaddocks met gedraineerde ondergrond, evenals een rijbaan van ongeveer 20 x 40 m met wattzandbodem en drainage als ideale trainingslocatie. De directe omgeving is ook goed geschikt voor ritten. Op ongeveer 5 km afstand bevindt zich de rijvereniging Aalestrup met twee grote rijhallen, die men als lid tegen een voordelig tarief kan gebruiken. Woonoppervlakte huis: 152 m² Perceeloppervlakte: 83.819 m² (waarvan weiland ongeveer 5 ha, bos ongeveer 2 ha)
Contact opnemen met aanbieder
* Verplichte velden
Bericht sturen
Bericht
Copyright 1999-2026 • ehorses GmbH & Co. KG • ehorses.nl – voor privé- en commercieel gebruik Paarden kopen en Paarden verkopen.